How Scan to BIM Services Supports Sustainable Design

How Scan to BIM Services Supports Sustainable Design and Green Building Initiatives

Sustainable design and green building initiatives have become essential in modern urban development. Efficient planning and resource management help r

lisa Brown
lisa Brown
9 min read

Sustainable design and green building initiatives have become essential in modern urban development. Efficient planning and resource management help reduce waste, lower environmental impact, and improve building performance. 


Scan to BIM Services plays a significant role in achieving these goals by offering accurate digital representations of existing structures helping engineers, builders, and other professionals adopt sustainable practices.


Reducing Material Waste with Scan to BIM Services


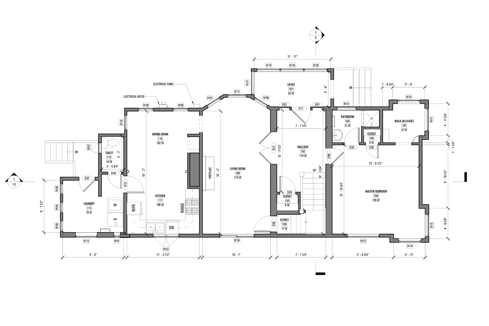
One of the primary ways Scan to BIM Modeling Services supports sustainability is by minimizing material waste. Traditional renovation and retrofitting methods often lead to excessive demolition and unnecessary use of new materials. 


By utilizing 3D laser Scanner technology, professionals can capture detailed as-built data, allowing precise planning for modifications. This method reduces material wastage and promotes the reuse of existing components, aligning with green building strategies.



Energy Efficiency Through Accurate Digital Models


Energy efficiency is a critical factor in sustainable design. Point Cloud to BIM Services converts scanned data into accurate digital models that help engineers analyze energy performance. 


These models assist in identifying areas of energy loss, optimizing insulation, and improving ventilation planning. With access to detailed information, energy-saving solutions can be implemented effectively, reducing the overall carbon footprint of a project.



Supporting Retrofitting and Adaptive Reuse


Rather than demolishing old buildings, retrofitting and adaptive reuse are key practices in sustainable design. Scan to 3D BIM Models provides precise data that helps professionals assess existing conditions and develop suitable retrofitting plans. This approach extends the lifecycle of structures, reduces demolition waste, and minimizes the demand for new materials, making it an eco-friendly alternative to new developments.



Water Conservation and Sustainable MEP Planning


Sustainable design goes beyond structural modifications—it also includes efficient water management. Building Information Modeling Services aids in the optimization of plumbing and mechanical systems by providing detailed models of existing layouts. 


Engineers can use 3D BIM Scanner Services to detect leaks, assess water usage, and design better water conservation strategies. This proactive approach helps create eco-friendly environments by reducing water consumption and preventing resource wastage.



Lowering Carbon Footprint with Digital Documentation


Frequent site visits and manual measurements contribute to carbon emissions through transportation and extended labour hours. By utilizing Scan to BIM Services, professionals can reduce the need for on-site inspections, as high-quality digital documentation eliminates redundant travel. This shift toward digital workflows lowers emissions and supports sustainable working practices.



Enhancing Life Cycle Assessment and Sustainable Decision-Making


Sustainable building practices require a thorough understanding of a structure's life cycle impact. BIM Services enable detailed life cycle assessments, helping stakeholders make informed decisions about materials, energy consumption, and maintenance requirements. With access to comprehensive data, professionals can prioritize sustainable alternatives and implement energy-efficient upgrades.


Green Certification Compliance


Green building certifications such as LEED and BREEAM require precise documentation and sustainable planning. Scan to BIM Modeling Services helps meet certification criteria by providing accurate as-built data that supports compliance efforts. Digital models generated from Point Cloud to BIM Services assist in verifying sustainability measures, streamlining certification processes, and promoting environmentally responsible practices.



Scan to BIM Services is a key enabler of sustainable design and green building initiatives. By leveraging 3D laser Scanner technology and Building Information Modeling Services, professionals can reduce waste, improve energy efficiency, and promote eco-friendly building solutions. The integration of Scan to 3D BIM Models into sustainable planning ensures a greener future for the built environment, making it a valuable tool for engineers, drafters, and modellers working toward sustainability goals.



More from lisa Brown

View all →

Similar Reads

Browse topics →

More in Design

Browse all in Design →

Discussion (0 comments)

0 comments

No comments yet. Be the first!