Building a custom home is one of the most significant investments you will ever make. It is the transition from a dream to a physical reality, and that journey begins with a professional architectural design house plan. While many homeowners confuse a "floor plan" with an "architectural plan," the latter is a comprehensive technical roadmap that ensures your home is not only beautiful but structurally sound, energy-efficient, and compliant with local building codes.
At Carlson Architects & Building, we believe that a well-executed plan is the difference between a house that simply looks good and one that functions perfectly for your lifestyle.
Understanding the Architectural Design House Plan
An architectural design house plan is a set of detailed construction drawings that define every specification of your residential project. Unlike basic marketing floor plans seen on real estate websites, professional architectural plans serve as a legal and technical guide for builders, engineers, and city permit offices.
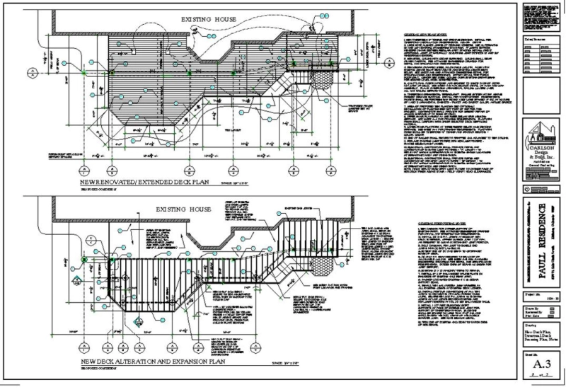
A complete set of architectural plans typically includes:
- Site Plan: An overhead view showing the house’s orientation on the lot, including property lines, setbacks, and landscaping.
- Floor Plans: Detailed layouts of each level, specifying wall thicknesses, door swings, window placements, and room dimensions.
- Elevations: 2D "flat" views of the home’s exterior from the front, back, and sides, detailing roof pitches and exterior finishes.
- Sections and Details: Cross-sectional "slices" through the walls or stairs to show internal structural connections and material layers.
- Schedules: Comprehensive lists for windows, doors, and finishes to ensure consistency throughout construction.
The Benefits of a Custom Architectural Plan
Choosing a custom architectural design over a pre-designed "stock" plan allows you to tailor every square foot to your unique needs. In 2026, the trend in residential design has shifted toward "intuitive living"—spaces that adapt to the homeowner rather than forcing the homeowner to adapt to the space.
- Maximizing Efficiency: Custom plans eliminate "dead space," such as unnecessary hallways, turning that square footage into functional storage or larger living areas.
- Optimizing Natural Light: Architects study the sun's path across your specific lot to place windows where they will provide maximum daylight and passive heating, lowering your energy bills.
- Future-Proofing: Whether you need a "Costco closet" (oversized walk-in pantry), a dog wash station in the mudroom, or a home office with built-in soundproofing for remote work, a custom plan builds these requirements in from day one.
- Structural Integrity: Professional plans include structural specifications that ensure your home can withstand local environmental factors, such as heavy snow loads or high winds.
Modern Trends in 2026 House Design
As we move through 2026, architectural design house plans are increasingly focused on sustainability and wellness. Homeowners are no longer looking for just "open concepts"; they are looking for "zoned living."
- Zoned Open Plans: Using sliding pocket doors, glass partitions, or changes in floor levels to define spaces without using solid walls.
- Biophilic Design: Incorporating internal courtyards and large-scale sliding glass walls that blur the line between indoor and outdoor living.
- Smart Integration: Recessed sensors and AI-assisted climate control systems are now integrated into the architectural plans themselves, rather than added as an afterthought.
- Wellness Suites: Primary bathrooms are being designed as "spa retreats," featuring steam showers, standalone soaking tubs, and direct access to private outdoor decks.
Your Pre-Design Checklist
Before meeting with your architect or designer to begin your house plan, it is helpful to have your goals organized. This ensures the design process is efficient and remains within your target budget.
- Define Your Lifestyle: How many people will live in the home? Do you host large dinners or prefer quiet nights? Do you have pets that require specific zones?
- Establish a Realistic Budget: Include a 10–15% contingency fund for unforeseen site conditions or material upgrades.
- Gather Inspiration: Use platforms like Pinterest or Houzz to collect images of architectural styles (e.g., Modern Farmhouse, Mountain Modern, or Minimalist) that resonate with you.
- Consider the Site: Note any views you want to capture or privacy concerns from neighboring properties.
- Think Long-Term: Will you need a main-floor guest suite for aging parents or a flex room that can evolve from a nursery to a home gym?
Conclusion
A professional architectural design house plan is the foundation of a successful build. It protects your investment by minimizing construction errors, ensuring code compliance, and creating a home that is a true reflection of your personality. At Carlson Architects & Building, we design and build homes and specialize in turning complex visions into precise, actionable blueprints.
